Property Detail

15 Holcomb

Walnut Creek CA 94596

$1,999,000

Status: Active

Property Details

Description

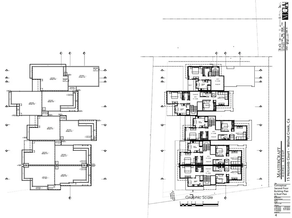
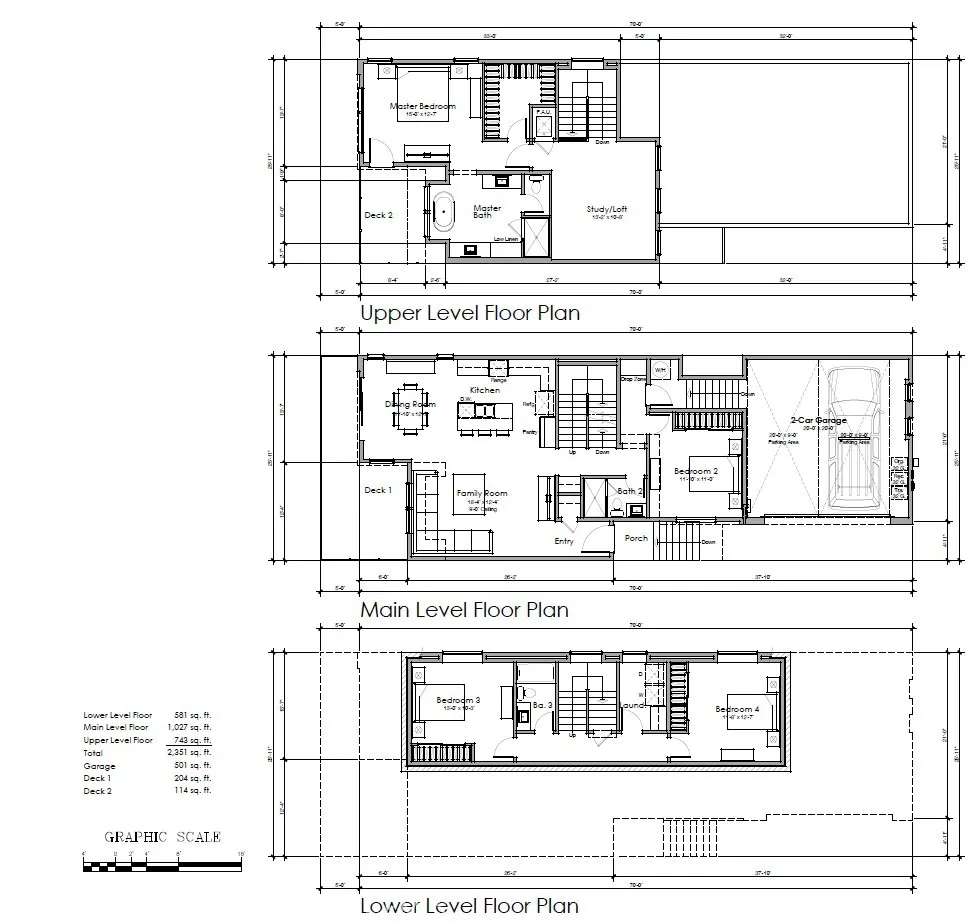
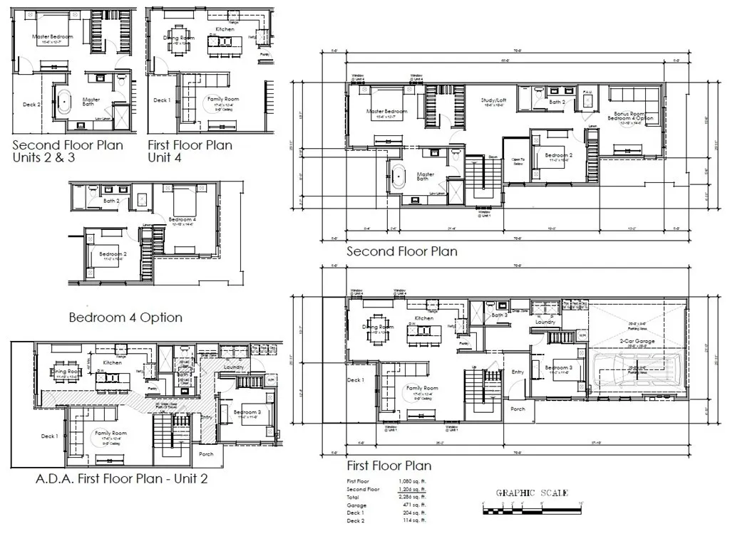
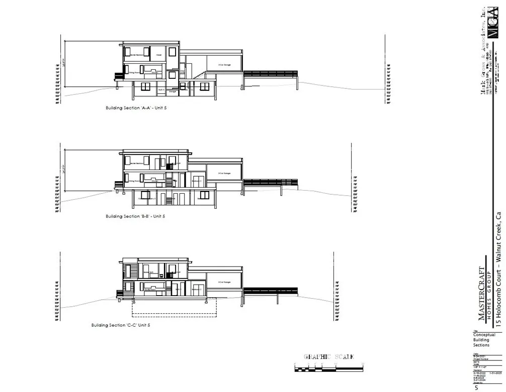
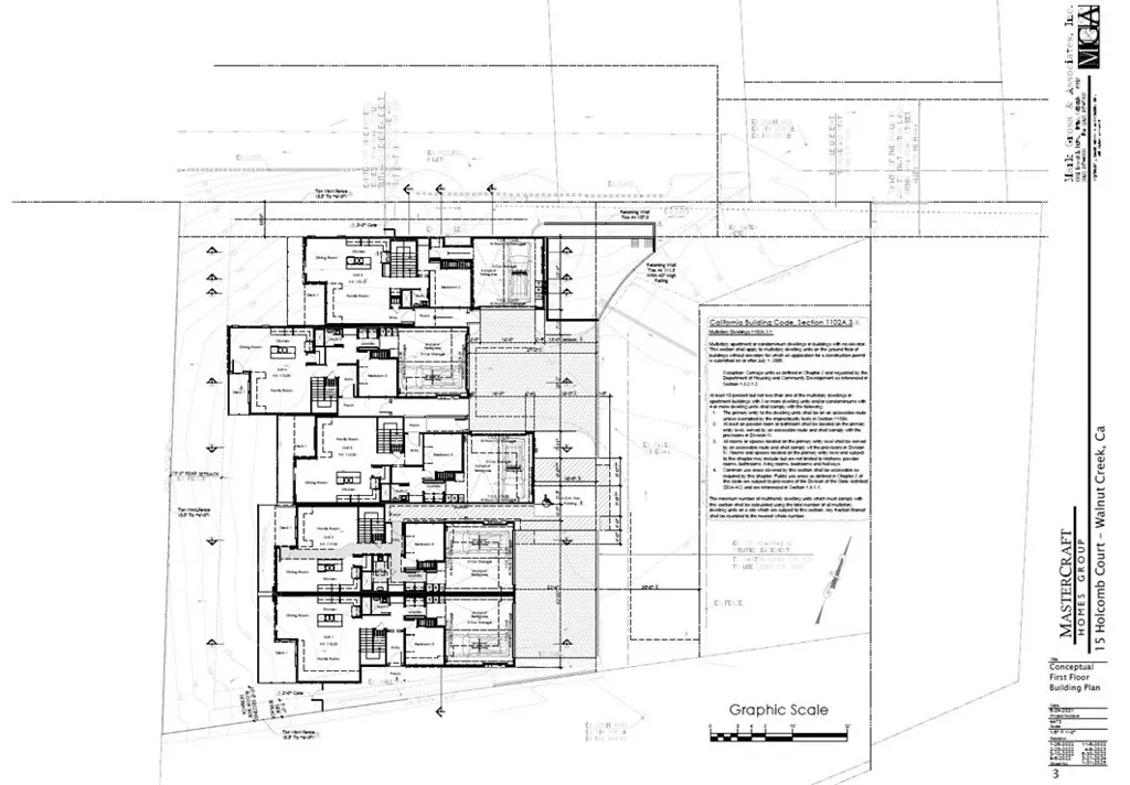
This residential lot has preliminary approved for 5 unit luxury townhomes with the city of Walnut Creek. The included pictures is a rendering of the project and a sample of the preliminary approved plans The project has excellent views to the north from all units.

Map Location

Listing provided courtesy of Gary Reed of BlackStar Realty. Last updated . Listing information © 2025 SANDICOR.

Nancy Carter

Nancy Carter

DRE# 01358480
Inquire Now
admin Real estate 9:00 AM - 5:00 PM 9:00 AM - 5:00 PM 9:00 AM - 5:00 PM 9:00 AM - 5:00 PM 9:00 AM - 6:00 PM 9:00 AM - 5:00 PM 9:00 AM - 5:00 PM https://static.royacdn.com/Site-464d060a-191d-42c7-9b47-dcf95a459820/nancy_carter.jpg realtor https://static.royacdn.com/Site-464d060a-191d-42c7-9b47-dcf95a459820/nancy_carter.jpg