Property Detail

526 Washington

Taft CA 93268

$299,000

Status: Active

Property Details

Description

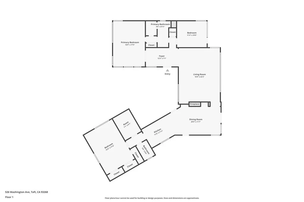
Discover a home overflowing with character located in Taft. This 1631 sqft 3 bedroom, 1.75-bath home includes a standout bonus featuring a vacant lot next door, included in the saleproviding valuable additional space ideal for extended outdoor living, a pool, or future expansion. Inside discover warm wood-accented ceilings that enhance the cozy atmosphere and pair beautifully with the views from the living room. The spacious layout includes a bright living area and a cozy dining space connected by a double-sided brick fireplace, adding charm and comfort to both rooms. Enjoy the sunlit primary room overlooking the tranquil courtyard with brick pathways, and peaceful garden views. French doors and large windows throughout bring in abundant natural light and create a seamless indoor-outdoor feel. A home filled with charm and opportunity, waiting for the right buyer to bring its next story to life.

Map Location

Listing provided courtesy of Laurie McCarty of Coldwell Banker Preferred Realtors. Last updated . Listing information © 2025 SANDICOR.

Nancy Carter

Nancy Carter

DRE# 01358480
Inquire Now
admin Real estate 9:00 AM - 5:00 PM 9:00 AM - 5:00 PM 9:00 AM - 5:00 PM 9:00 AM - 5:00 PM 9:00 AM - 6:00 PM 9:00 AM - 5:00 PM 9:00 AM - 5:00 PM https://static.royacdn.com/Site-464d060a-191d-42c7-9b47-dcf95a459820/nancy_carter.jpg realtor https://static.royacdn.com/Site-464d060a-191d-42c7-9b47-dcf95a459820/nancy_carter.jpg