Property Detail

19314 Valerio

Reseda CA 91335

$1,349,000

Status: Active

Property Details

Description

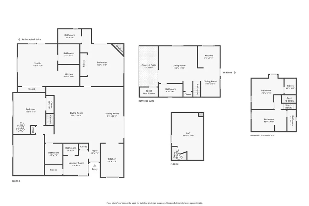
Three units, fully renovated and move-in ready, this turnkey property includes a main house, permitted ADU, and permitted JADU, all delivered vacant with strong rental potential. Recent upgrades include a new roof, three brand-new kitchens, fully remodeled bathrooms, new flooring throughout, and all new appliances, with electrical updated to a 3-gang 400-amp panel and each unit separately metered. The main house offers 3 bedrooms, 2.5 bathrooms, a bonus room, and a 2-car garage, while the ADU provides 2 bedrooms and 1.5 baths and the JADU is a 392 sq ft studio attached to the main house. The exterior features low-maintenance landscaping with artificial turf and decomposed granite, new vinyl fencing, and large private yards for each unit. In its current configuration, the property is projected to generate $9,000 or more per month in rental income. Starting January 2026, new ADU laws allow the garage to be converted into a 4th unit, creating the potential for a four-unit income property with exceptional rental income and investor upside.

Map Location

Listing provided courtesy of Alec Bogossian of JohnHart Real Estate. Last updated . Listing information © 2025 SANDICOR.

Nancy Carter

Nancy Carter

DRE# 01358480
Inquire Now
admin Real estate 9:00 AM - 5:00 PM 9:00 AM - 5:00 PM 9:00 AM - 5:00 PM 9:00 AM - 5:00 PM 9:00 AM - 6:00 PM 9:00 AM - 5:00 PM 9:00 AM - 5:00 PM https://static.royacdn.com/Site-464d060a-191d-42c7-9b47-dcf95a459820/nancy_carter.jpg realtor https://static.royacdn.com/Site-464d060a-191d-42c7-9b47-dcf95a459820/nancy_carter.jpg